南方医科大学口腔医院(广东省口腔医院)采购盘福院区A座八楼实验室建设工程设计项目报价(重询价)邀请函
发布时间:2019-11-06 00:00:00
南方医科大学口腔医院(广东省口腔医院)就以下设计项目邀请合格的单位进行报价。具体如下:
第一部分 投标人要求
1、投标人必须具有独立法人资格,能独立承担民事法律责任,并在中华人民共和国境内注册的法人机构(须提供年检有效期内的企业法人证书和营业执照或三证合一复印件)。
2、投标人必须具有建筑行业(建筑工程)甲级(含)以上设计的资质,或建筑装饰工程设计专项甲级(含)以上资质。
3、投标人营业范围及资质证书业务范围必须含盖消防设施专项工程设计项目;
4、投标人的设计资质必须通过ISO质量管理体系认证。
5、投标人的设计负责人必须具备执业设计师资格,同时具备建筑工程技术专业中级或中级以上职称,并在投标人公司注册;
6、信用要求:
6.1投标人或投标联合体成员不得被列入失信被执行人、重大税收违法案件当事人名单及政府采购严重违法失信行为记录名单。
6.2投标方需提供通过“信用中国”网站(www.creditchina.gov.cn)、中国政府采购网(www.ccgp.gov.cn)等渠道查询的信用信息查询记录网络截图件并加盖投标方公章。
7、投标方应具备《政府采购法》第二十二条规定的条件;
8、本项目不接受联合体投标。
第二部分 项目内容
一、项目概况
1、项目名称:南方医科大学口腔医院(广东省口腔医院)盘福院区A幢八楼实验室建设工程设计服务项目
2、项目编号:NKY20191027453
3、项目地点:广州市越秀区盘福路13-35号A幢八楼
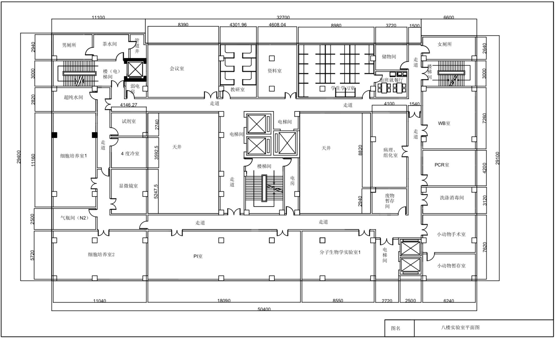
4、项目简介:南方医科大学口腔医院(广东省口腔医院)(下称采购人)从2019年1月1日起,受南方医科大学委托管理和使用麒麟大厦,决定按照广东省高水平专科医院的标准及南方医科大学对附属医院建设和发展的要求,将麒麟大厦装修改造为南方医科大学口腔医院(广东省口腔医院)盘福院区,为广大市民群众提供集医疗、预防、科研、教学于一体的高水平口腔专科医疗服务。由于麒麟大厦A幢八楼原是商业用途的写字楼,现拟将其A幢八楼装修改造为科研实验室用房,需要根据医院提供的八楼实验室平面图和场地实际情况入及科研实验室建设国家及所在地的相关规范、标准、条例进行平面图深化设计、施工图设计和后续设计,达到完成施工、验收和后续安全使用的目的。采购人决定采购一家具有实验室建设相应设计资质的设计公司对盘福院区A幢八楼实验室建设工程进行全面设计。
5、项目标的及预算
序号 | 项目标的名称 | 单位 | 数量 | 预算金额 |
1 | 盘福院区A幢八楼实验室建设工程设计服务项目 | 平方米 | 1100 |
6、项目实施时间:2019年10月至11月,工期30天;
7、项目资金性质:自筹资金
二、项目要求
★1、投标人必须为该项目成立专业的设计团队,设计负责人必须具备执业设计师资格,同时具备建筑工程技术专业中级或中级以上职称,并在投标人公司注册,其他工作人员必须是投标人的正式员工(提供社保缴费证明),并具有相应设计专业的从业资格(报价文件中必须附上并加盖公章);
★2、投标人必须要有该项工程的设计方案、工作计划表及解决项目重点、难点的措施。
▲3、投标人必须与采购人进行深入交流和充分沟通,并踏勘现场,详细列出设计项目需要采购人提供资料和文件的清单。
4、投标人必须对设计项目所需的资料和文件进行收集和整理。并加以分析调研选用。
▲5、投标人必须严格按本项目相对应的国家及行业颁布执行的标准、规范、技术规程和管理条例及相关文件规定(列出清单)、建筑物结构安全检测鉴定报告、采购人提供的资料、建筑物的实际情况进行设计工作;
6、投标人必须有本工程设计成果控制措施,如要有组织保证措施、进度保证措施和质量保证措施;
7、投标人必须提供近年与本项目工程内容和规模相类似的设计业绩2个以上;
8、投标人必须提供响应报价邀请函的全部内容以及报价单内容的真实性承诺书并加盖公章。
三、设计原则
1、遵循国家、医疗卫生行业现代化科研实验室建设设计的现行标准、规范和条例等为原则。
2、符合国家卫生部门及相关部门的实验室设计要求。
3、满足科研实验室各个功能区域的使用要求。
4、要体现以人为本的管理意识。
5、要体现高效、节能意识。
6、要体现可持续发展的现代化实验室设计意念。
四、项目的规划要求
按照使用科室的要求,本实验室建设项目的功能规划及要求如下:
1、办公区规划要求
1.1会议室
1.2教研室
1.3资料室
1.4视频监控室
1.5学生学习室(包括加班就餐区)
1.6储物室
1.7男、女厕所
1.8茶水间
1.9弱电房
1.10强电房
2、实验区规划要求
2.1细胞培养室(2间)
2.2气瓶间
2.3显微镜室
2.4试剂贮存室
2.5 4℃冷室
2.6清洗消毒间(南区)
2.7纯水制造间
2.8 Pi室(3间)
2.9分子生物学实验室
2.10小动物手术室(包括小动物暂存间)
2.11 PCR实验室
2.12 WB实验室
2.13病理、组化实验室
2.14清洗消毒间(北区)
2.15废物暂存间
五、项目服务内容
该项目服务内容包括并不限于如下工作:
1、八楼实验室平面图深化设计;
2、八楼实验室装修施工图设计,包括并不限于如下内容:
2.1土木装修装饰工程施工图设计;
2.2空调通风设备安装工程施工图设计;
2.3强弱电安装工程施工图设计;
2.4给排水及纯水管道安装工程施工图设计;
2.5集中供气系统安装工程施工图设计;
2.6智能化中控系统安装工程施工图设计;
2.7安防系统安装工程施工图设计;
2.8标识、标志指引水牌制作安装设计;
3、八楼实验室消防专业施工图设计,包括并不限于如下内容:
3.1消防报警、灭火系统报建图设计;
3.2消防报警系统安装工程施工图设计;
3.3消防灭火系统安装工程施工图设计;
4、编制工程预算书;
5、设计跟踪服务;
6、现场指导与监督服务;
7、编制竣工图及其他相关图纸设计;
8、施工配合服务;
9、编制用于材料设备和施工等招标技术要求的文件;
10、协助规划报建及消防节能等报建;
11、协助办理其他专业报批手续及地方行政主管部门的协调等。
12、设计项目需要提交设计资料和文件的要求如下表:
序号 | 资料及文件名称 | 份数 | 提交日期 | 备注 |
1 | 平面图深化设计 | ≥8 | 7天 | |
2 | 施工图设计 | ≥8 | 平面图初审通过后15天 | 含材料选板、定板完成时间 |
3 | 工程预算 | ≥3 | 施工图审查通过后7天 | |
4 | 设计变更图、修改图 | ≥3 | 发生变更时发生后7天 | |
5 | 竣工图 | ≥8 | 竣工验收合格后20天 |
六、其他要求
▲1、投标人项目负责人必须全盘掌握建设项目设计的工作进展情况,保持通讯畅通,能随时答复采购人的询问。
2、投标人必须承诺不得随意更换设计项目的项目负责人和技术负责人,如确须更换项目负责人和技术负责人必须得到采购人的同意。
3、投标人在近三年内应具有同类或类似工程的设计项目三个以上的用户业绩,同时提供服务合同等相关完工证明资料;
4、投标人在广州市内应设有长期的办公场所或售后服务机构(提供房屋产权证或租赁合同)。
★5、该项目的装修工程施工图设计成果及工程预算书必须与消防专业工程施工图设计成果及工程预算书分册钉装。
七、售后服务
1、投标人项目负责人应对进行全程跟进。并有义务保证设计项目按时保质地完成。
2、建设项目在设计过程中,如采购人需要完善和修改图纸,投标人必须无条件按意见修改,不准以任何理由拒绝。
3、建设项目在施工过程中,如采购人或施工单位需要投标人完善和修改与实际情况不符的图纸,投标人必须无条件按意见修改,不准以任何理由拒绝。
4、如建设项目施工过程中有重要会议需要投标人参加,投标人必须派相关人员参加,并有义务向参会人员解释设计项目中的疑难问题。
5、投标人接到采购人通知后,必须在4小时内响应,24小时内答复采购人的要求。
八、付款方式
采购人按下列程序付款:
1、合同签订后10个工作日内采购人支付合同总价的20 % 给中标人作为定金;中标方完成平面深化设计工作,并通过采购人审核后,采购人支付合同总价的15%给中标人;中标人完成施工图设计和工程概算并通过审核后,支付合同总价的45%给中标人,中标人完成竣工图设计并通过审核后,采购人支付合同总价的20%给中标人。
2、中标人凭以下有效文件与采购人结算:
(1)合同;
(2)中标人开具的正式发票;
(3)中标通知书。
九、项目报价邀请发出时间:2019年11月6日时。
十、报价截止时间三个工作日内:2019年11月12日。
十一、邀请人名称、地址和联系方式
1、名称:南方医科大学口腔医院(广东省口腔医院)
2、联系地址:广州市海珠区江南大道南368号连州楼3楼总务科
3、联系部门:总务科
4、联系人:刘先生
5、联系电话:020-84427043
6、邮箱:nky_zwk@163.com
十二、录用原则
1、同等条件下,报价低者被录用。
2、报价书请按照报价清单目录内容准备。(详见下面附件)
3、超出截止日期的报价将不被采纳,人工或快递接收时间为期(用信封装好并密封好)。
4、如所有公司对此项目的报价都超过10万元,总务科终止此项目的采购并移交设备科按医院相关制度进行采购。
南方医科大学口腔医院(广东省口腔医院)总务科
2019年11月5日
附件1:麒麟大厦八楼平面图

报价清单内容如下:
序号 | 内容 |
一 | 投标人资格文件 |
1.有效期内的企业法人身份证 | |
2.营业执照(三证合一)复印件 | |
3.法人代表人资格证明书 | |
4.法人代表人授权书 | |
5.具有建筑行业(建筑工程)甲级(含)以上设计的资质 | |
6.IOS质量管理体系认证 | |
7.设计负责人具备执业设计师资格,同时具备建筑工程技术专业中级或中级以上职称,并在投标人公司注册 | |
8.未被列入失信被执行人、重大税收违法案件当事人名单及政府采购严重违法失信行为记录名单承诺函 | |
9.通过“信用中国”网站(www.creditchina.gov.cn)、中国政府采购网(www.ccgp.gov.cn)等渠道查询的信用信息记录网络截图件并加盖投标方公章 | |
二 | 项目要求 |
1.投入项目设计人员汇总表”工作人员必须是投标人的正式员工(提供社保缴费证明)” | |
2.针对该项目工程的设计方案、工作计划表及解决项目重点、难点的措施(设计方案及工作计划表、解决项目重点,难点的措施) | |
3.投标人必须与采购人进行深入交流和充分沟通,并踏勘现场,详细列出设计项目需要采购人提供资料和文件的清单 | |
4.投标人必须对设计项目所需的资料和文件进行收集和整理,并加以分析调研选用承诺函 | |
5.投标人必须严格按本项目相对应的国家及颁布执行的标准、规范、技术规程和管理条例及相关文件规定(列出清单)、建筑物结构安全检测鉴定报告、采购人提供的资料、建筑物的实际情况进行设计工作 | |
6.完全响应招标邀请函的全部内容以及报价单内容的真实性承诺书并加盖公章 | |
7.本工程设计成果控制措施,组织保证措施、进度保证措施和质量措施 | |
8.投标人必须提供近年与本项目工程内容和规模相类似的设计业绩2个以上 | |
三 | 其他要求 |
1.投标人项目负责人必须全盘掌握建设项目设计的工作进展情况,保持通讯畅通,能随时答复采购人的询问承诺书 | |
2.投标人必须承诺不得随意更换设计项目负责人和技术负责人,如确实须更换项目负责人和技术负责人必须得到采购人的同意(承诺书) | |
3.投标人在近三年内应具有同类或类似工程的设计项目三个以上的用户业绩同时提供服务合同等相关完工证明资料 | |
4.该项目的装修工程施工图设计成果及工程预算书必须与消防专业工程施工图设计成果及工程预算书分册钉装承(承诺书) | |
5. 投标人在广州市内应设有长期的办公场所或售后服务机构(提供房屋产权证或租赁合同) | |
四 | 项目规划要求 |
1.投标人必须按照采购人功能区规划要求、服务内容完善设计方案等 | |
五 | 售后服务承诺 |
1.对本项目需要完善和修改图纸无偿进行深化设计服务的承诺 | |
2.如建设项目施工过程中有重要会议需要投标人参加,投标人必须派相关人员参加,并有义务向参会人员解释设计项目中的疑难问题的承诺 | |
六 | 项目的投标报价及实施时间 |
1.项目的投标报价,列明报价标准(注明总价、分区报价) | |
2. 设计项目需要提交设计资料和文件的要求实施时间 |
附件:南方医科大学口腔医院(广东省口腔医院)盘福院区A幢八楼实验室建设工程设计服务项目邀请函(重询价).doc

番禺院区
海珠广场院区
盘福院区
粤公网安备44010502003112号